IMG_1082.jpg
IMG_1077.jpg
IMG_1078.jpg
Ground Floor Plan
Basement Floor Plan
South East Elevation
South West Elevation
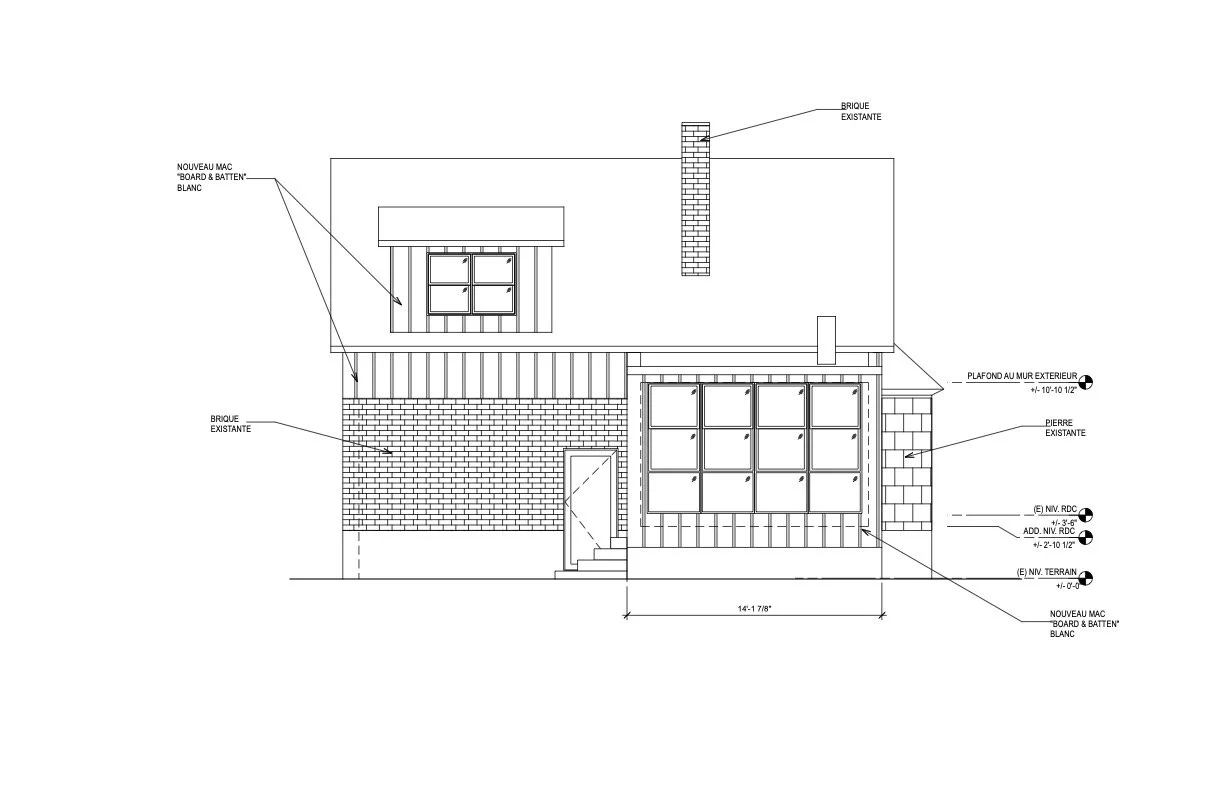
North West Elevation
prev / next